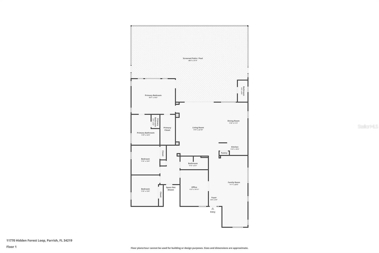
11770 HIDDEN FOREST LOOPPARRISH, FL 34219




Mortgage Calculator
Monthly Payment (Est.)
$2,550Tucked away in Parrish Florida, this exceptional luxury pool home offers the perfect blend of comfort, privacy, and natural beauty. Situated on a peaceful preserve lot, this 3 bedroom, 2.5 bath residence with a den and 3-car garage is surrounded by tranquil views from nearly every room. Recent upgrades provide peace of mind, including a NEW ROOF and CUSTOM BATH REMODEL (‘24), plus newer A/C (‘23). The welcoming entry opens to a spacious, light-filled living area that can easily serve as a formal living and dining space or an expansive great room. Tasteful luxury vinyl flooring flows throughout enhancing its modern appeal. At the front of the home, a private den enclosed by glass French doors offers flexibility as a home office, fourth bedroom, playroom, or cozy sitting area. The heart of the home is thoughtfully designed, with the chef’s kitchen and primary suite positioned at the rear to capture stunning views of the oversized lanai, sparkling pool with fountain, and lush preserve beyond. The kitchen impresses with 42” solid wood cabinetry, an expansive breakfast bar, café dining area, and pantry—perfect for entertaining or everyday living. Just beyond, the second living space seamlessly connects the primary suite with the front bedroom wing, creating an inviting and functional layout. Two guest bedrooms and a full bath are tucked toward the front of the home, providing comfort and privacy for family and visitors alike. Step outside to your own private retreat featuring an extended lanai, a grand pool with a soothing fountain, and a convenient pool bath—ideal for enjoying Florida’s indoor-outdoor lifestyle. The exterior is equally impressive with a spacious 3-car garage. The entire home has been freshly painted in soft, neutral tones that complement the existing décor and enhance its bright, airy feel. Located off the beaten path, this home offers a rare sense of privacy while still being part of the sought-after Forest Creek community. Residents enjoy upscale amenities including a resort-style pool and spa, fitness center, scenic nature trails through preserved landscapes, playground, park, two dog parks, a community center with kitchen and gathering space, and a fishing lake with charming gazebos. Friendly neighbors, an abundance of live nature and an active lifestyle create endless opportunities for relaxation and recreation. Forest Creek is located outside of the hubbub of North River Ranch but conveniently close to the new Parrish shopping centers offering dining, a gym, and an array of shopping opportunities plus three major airports, this remarkable home delivers peaceful living with everyday convenience. Come experience this beautiful property in one of Manatee County’s fastest-growing and most desirable areas.
| 3 hours ago | Listing updated with changes from the MLS® | |
| 4 hours ago | Listing first seen on site |
Listing information is provided by Participants of the Stellar MLS. IDX information is provided exclusively for personal, non-commercial use, and may not be used for any purpose other than to identify prospective properties consumers may be interested in purchasing. Information is deemed reliable but not guaranteed. Properties displayed may be listed or sold by various participants in the MLS Copyright 2026, Stellar MLS.
Last checked: 2026-02-11 11:17 AM EST

Did you know? You can invite friends and family to your search. They can join your search, rate and discuss listings with you.